図面式フロアプラン(平面図):ダウンロード、フロアプランのサンプル、面積
最終更新日:2021年6月22日 4:46
図面式フロアプランをダウンロードする
ご注文をいただいてから2営業日以内に概略フロアプランが完成します。
準備ができたらメールでお知らせします。
メールに記載されているリンクをクリックするか、
Matterport cloud (my.matterport.com)に直接ログインしてください。
スペースの詳細ページで「ダウンロード」タブをクリックし、利用可能な概略フロアプランを探します。

PNG、SVG、およびPDF形式の概略フロアプランを含むZIPファイルをダウンロードします。
最終的な空間の各フロアは、PNGとSVGの両方のファイルとして保存されます。
PDFファイルは、すべてのフロアを1ページにまとめたものです
(PDFはベクターファイル形式ではありません)。
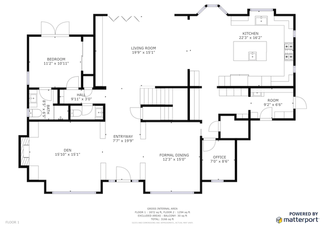
図面式フロアプランのサンプル

詳細については、この図面式フロアプランに対応する以下のスペースをご覧ください。
面積:総内部面積(GIA)
図面式フロアプランにGIA測定が含まれるようになりました。
総内部面積は、外壁の内面に対して測定された、建物内に含まれる床面積として定義されます。
合計GIAは、Zipファイルに含まれるすべてのドキュメントの一番下に表示されます。
含まれる:
・内壁から内壁までの住宅の床面積
・小さなクローゼット
含まれない:
・デッキ、パティオ、バルコニーなどの家の外部エリア
・ガレージ
・クロールスペースや傾斜した天井の下など、高さが5フィート(1.5 m)未満の領域

高さが5フィート(1.5 m)未満のエリアは、図面式フロアプラン上に点線で示されます。
各部屋ごとに測定されています。 各部屋の測定点は、壁の矢印で示されています。

Related Articles
FAQ:図面式フロアプラン(平面図)
最終更新日:2021年11月4日 対応カメラ サポートされているカメラで作成されたMatterportモデルであれば、 フロアプランを購入できるようになりました。 これには、360度カメラ(サードパーティ製カメラ)やMatterport for iPhone/Androidで作成されたモデルが含まれます。 アドオンタブから図面式フロアプランがMatterportアカウント内に表示され、 ここからフロアプランを注文することができます。 注文設定が有効になっていることを確認してください。 ...
図面式フロアプラン(平面図)を注文する方法
最終更新日:2021年11月8日 始める前に フロアプランを注文するには、次の前提条件を満たす必要があります 1.アカウントの図面式フロアプランを有効にする必要があります。 2.プロフェッショナルプラン以上が必要です。 3.スキャンは、対応しているカメラでのみ行われたものでなければなりません。 問題点を確認する 注文する前に、フロアプランビューで Matterport スペースを開いて、 希望どおりに見えることを確認してください。 ...
図面式フロアプラン(平面図)のベストプラクティス
最終更新日:2020年11月04日 02:44 概要 Matterport モデルを住宅用不動産マーケティング専用の図面式フロアプランに変換します。 Matterport フロアプランには、個々の部屋の測定値と物件の特徴のイラストだけでなく、総床面積の計算も含まれています。 このガイドでは、完全な図面式フロアプランを作成するために必要な すべてのスキャンデータを含むモデルを作成するために、住宅物件をスキャンするための簡単なヒントを提供します。 ...
図面式フロアプラン(平面図)の詳細オプションの構成
最終更新日:2020年11月29日 04:59 図面式フロアプランを注文する場合、いくつかの詳細オプションから選択できます。 この記事では、各オプションは何か、なぜそれが必要なのかについて説明します。 これらのオプションは、図面式フロアプランの最初の注文時にのみ選択できます。 それらは、すでに注文済みまたは提供済みの注文を修正するために使用することはできません。 Hide Room Dimensions ー 部屋の寸法を非表示にする ...
アカウントの図面式フロアプラン(平面図)を有効にする
最終更新日:2020年11月04日 02:45 フロアプランを注文するには、次の前提条件を満たす必要があります。 1.アカウントで図面式フロアプランを有効にする必要があります。 2.プロフェッショナルプラン以上が必要です。 3.スキャンは、Matterport対応のカメラで行われている必要があります。 Matterport Cloudにログインし、右上のメニューから【Settings(設定)】を開きます。 ...