最終更新日:2020年5月21日 23:25
なぜ変更するのですか
一部のWebサイトでは、レイアウトに合わせて写真を3:2の比率にすることが推奨されています。
フロアプランが切り取られないようにするには、アップロードする前に、
変更方法
画像のサイズ変更や切り抜きができる限り、任意の画像編集アプリケーションを使用できます。
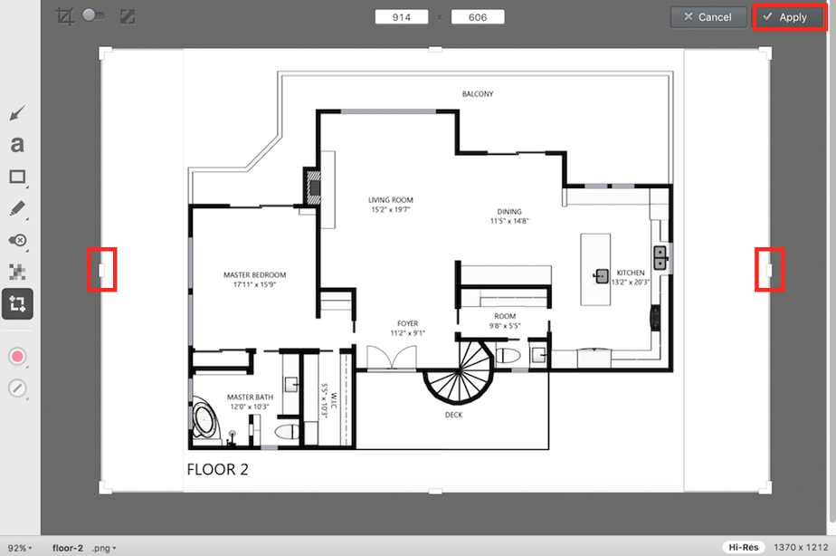
Skitchを起動し、[ファイル]> [開く]に移動します。
[ツール]> [切り抜き/サイズ変更]に移動して、切り抜きツールを開きます。
上部に現在の解像度が表示されます。
通常、画像は正方形になるため、3:2の比率に合わせて幅を広くする必要があります。
まず、現在の高さに基づいて目標幅を計算します。

上の画像では、現在の高さは606なので、目標幅は909になります。
新しいアイコンに変わるまで、カーソルを左端に移動します。
[適用]をクリックして編集を保存します。